218 Oyster Lane, North Topsail Beach, NC 28460 (MLS # 100559902)
|
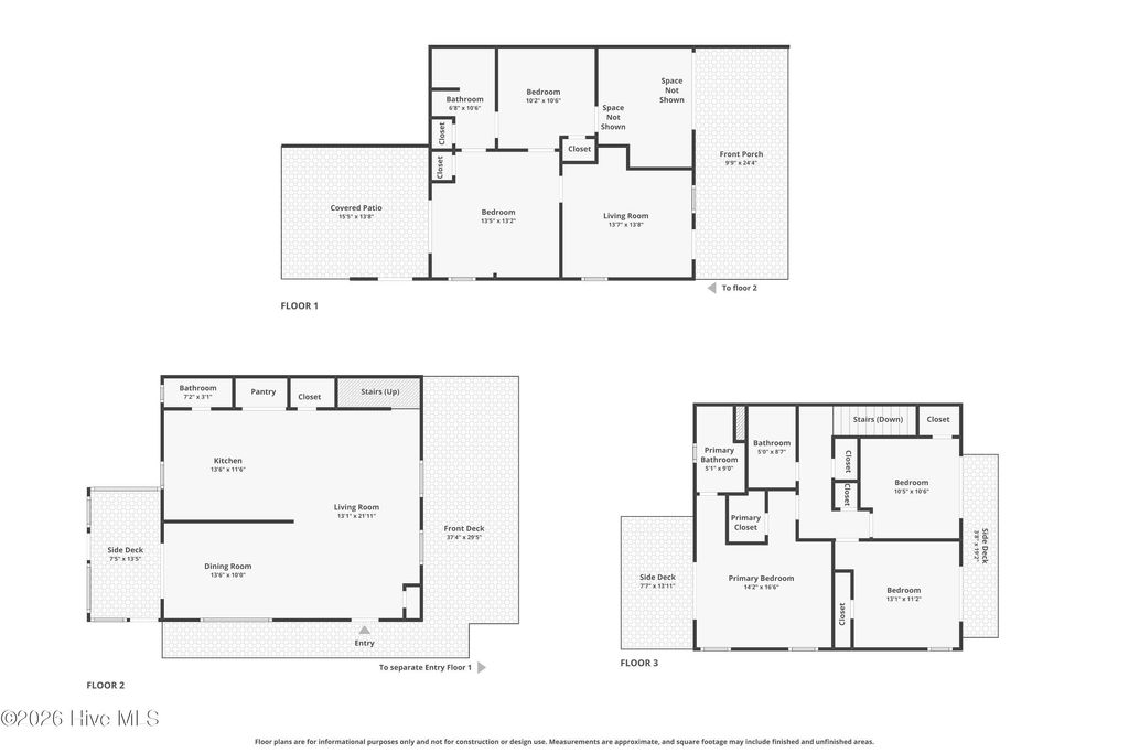
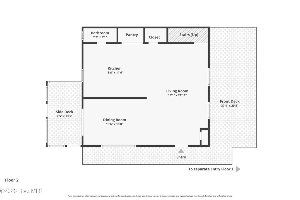
Honey Pack the bags, we are going to the beach! 5.3 Miles down N New River Inlet Rd and just 1/10 of a mile from a public beach access, PLUS a swimming pool! This home may check all the boxes!!! Pulling up to the home you can enter the main floor to the ''pool house'' this space features a living room, bedroom, bunk room and bathroom. You are led out to the backyard where you have amazing, covered patio, outdoor shower, and of course your inground pool! This downstairs area is not counted in the heated and cooled living space. Head upstairs and you have a spectacular front porch, with ocean and inlet views! As you enter the home you are greeted by your dream beach getaway. Walking in you have the dining room, perfect for the entire family to sit down and enjoy time together! Leading into the living room and chefs dream of a kitchen! The kitchen has beautiful blue lower and white upper soft close cabinets, tiled backsplash, and beautiful quartz countertops. Off the dining room you will find a screened in deck and off that is a non screened deck. Back inside and upstairs you have a hall bathroom, two secondary bedrooms- both bedrooms have a deck which have views of both the inlet and the ocean. Sit out front and listen to the waves crashing! The primary bedroom finished off the upstairs, featuring its very own deck! Spend the evenings relaxing in the backyard, by the pool or out at the fire pit! This home is sure to be the perfect beach getaway, fulltime home or vacation rental! The memories are endless at 218 Oyster Lane.
| DAYS ON MARKET | 4 | LAST UPDATED | 3/12/2026 |
|---|---|---|---|
| TRACT | North Topsail Shores | YEAR BUILT | 1984 |
| GARAGE SPACES | 1.0 | COUNTY | Onslow |
| STATUS | Active | PROPERTY TYPE(S) | Condo/Townhouse/Co-Op |
| Elementary School | Coastal |
|---|---|
| Jr. High School | Dixon |
| High School | Dixon |
| ADDITIONAL DETAILS | |
| AIR | Heat Pump |
|---|---|
| AIR CONDITIONING | Yes |
| APPLIANCES | Dishwasher, Dryer, Electric Range, Microwave, Refrigerator, Washer |
| CONSTRUCTION | Vinyl Siding |
| EXTERIOR | Balcony, Outdoor Shower |
| GARAGE | Yes |
| HEAT | Electric, Heat Pump |
| INTERIOR | Ceiling Fan(s) |
| LOT | 5663 sq ft |
| LOT DIMENSIONS | 39x150x35x150 |
| PARKING | Gravel |
| POOL | Yes |
| POOL DESCRIPTION | In Ground |
| STORIES | 2 |
| SUBDIVISION | North Topsail Shores |
| UTILITIES | Sewer Connected, Water Connected |
| VIEW | Yes |
| VIEW DESCRIPTION | Ocean |
| WATER | Public |
| WATERFRONT DESCRIPTION | See Remarks |
TOTAL MONTHLY PAYMENT
| SATELLITE VIEW |
| / | |
Copyright 2026 Hive MLS. All rights reserved. Hive MLS, provides content displayed here (“provided content”) on an “as is” basis and makes no representations or warranties regarding the provided content, including, but not limited to those of non-infringement, timeliness, accuracy, or completeness. Individuals and companies using information presented are responsible for verification and validation of information they utilize and present to their customers and clients. Hive MLS will not be liable for any damage or loss resulting from use of the provided content or the products available through Portals, IDX, VOW, and/or Syndication. Recipients of this information shall not resell, redistribute, reproduce, modify, or otherwise copy any portion thereof without the expressed written consent of Hive MLS.
This IDX solution is (c) Diverse Solutions 2026.
