148 Dugger Lane, Wilmington, NC 28412 (MLS # 100556960)
|
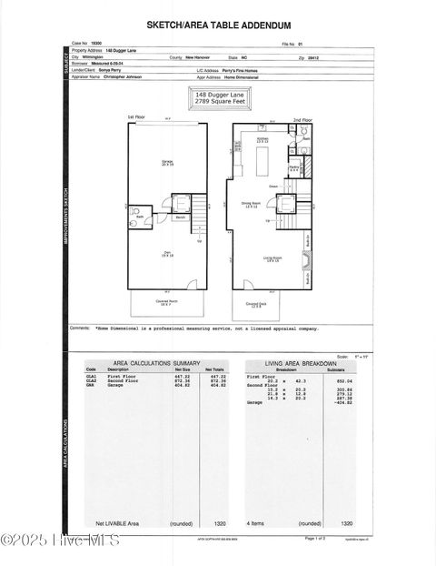
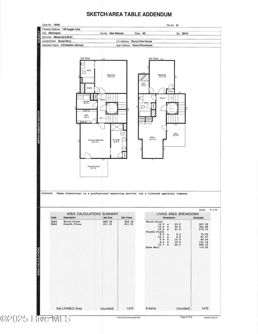
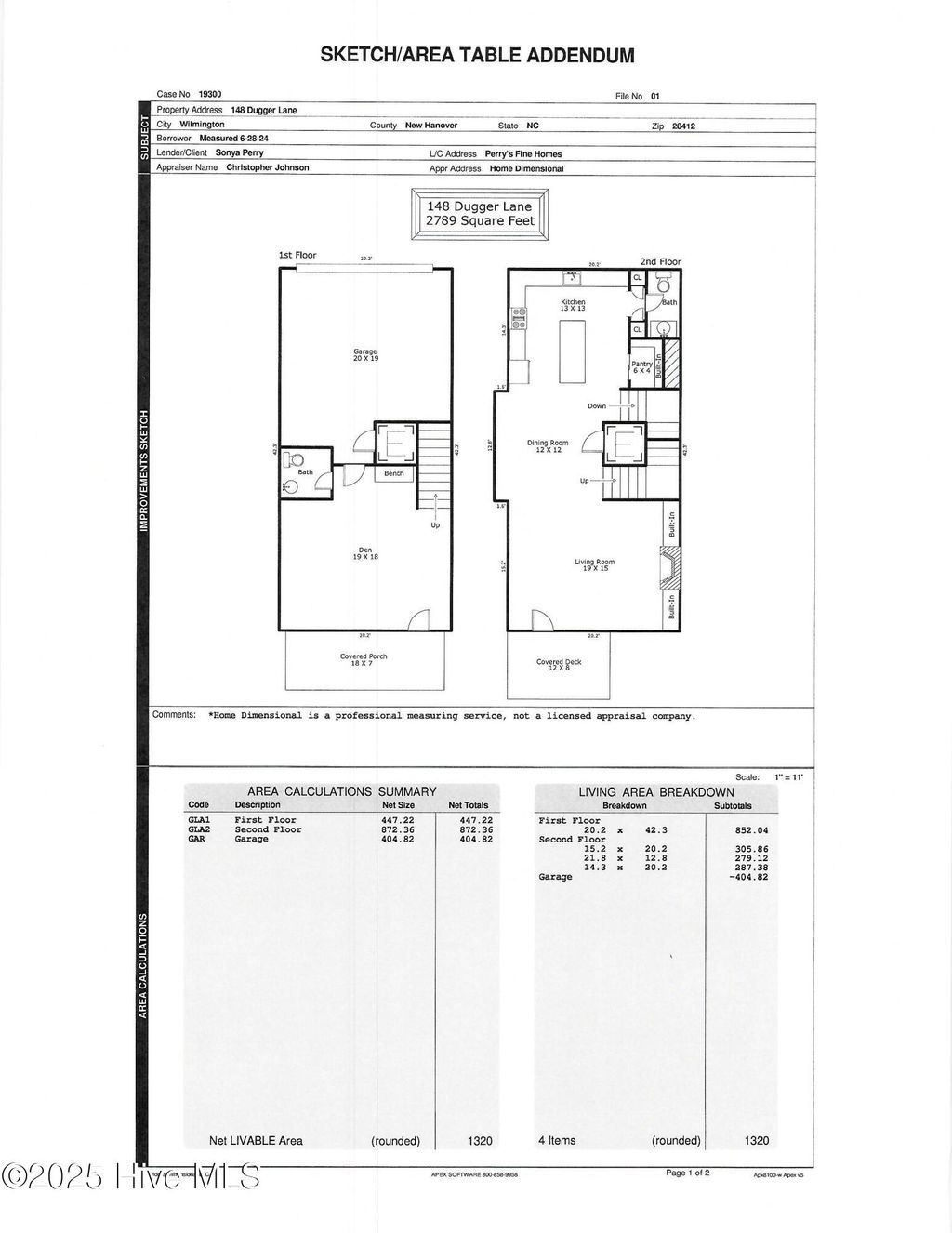
148 Dugger Lane is more than just a home; it's a lifestyle. Located in Riverlights Marina Village within Riverlights Community. Don't miss the opportunity to make this exquisite townhouse your own. With 3 bedrooms, 3 full bathrooms, and 2 half bathrooms, this home is designed to meet all your needs. A primary bedroom ensuite and a second bedroom as an ensuite. With 2 additional rooms, one on main level and the other on the 4th level, are currently used as multipurpose rooms. A reading area, an office or sitting area. The ground level has a sitting area that boasts an electric wall mounted fireplace. This 4 story end unit, offers added privacy and an abundance of natural light, creating a warm and inviting atmosphere throughout. The home is designed with the highest quality features. Attention to detail is an understatement. Plantation shutters, motorized blinds in the kitchen that showcases marble countertops and backsplash. The marble carries throughout the unit in the baths. An elevator ensures easy access to all floors. A whole house generator provides added assurance for uninterrupted comfort. Enjoy the convenience of a central vacuum system, phantom screened doors, and revel in the custom storage solutions of California closets in the master and spare bedroom. Cozy up by the gas fireplace or relax on one of 2 balconies that offer broken views of the marsh. Located close to top amenities, this townhome is move in ready.
| DAYS ON MARKET | 11 | LAST UPDATED | 2/26/2026 |
|---|---|---|---|
| TRACT | Riverlights Marina Village | YEAR BUILT | 2021 |
| GARAGE SPACES | 2.0 | COUNTY | New Hanover |
| STATUS | Active | PROPERTY TYPE(S) | Condo/Townhouse/Co-Op |
| Elementary School | Bellamy |
|---|---|
| Jr. High School | Myrtle Grove |
| High School | New Hanover |
| ADDITIONAL DETAILS | |
| AIR | Heat Pump |
|---|---|
| AIR CONDITIONING | Yes |
| APPLIANCES | Dishwasher, Disposal, Dryer, Electric Water Heater, Gas Cooktop, Gas Oven, Refrigerator, Washer |
| BASEMENT | None |
| CONSTRUCTION | Fiber Cement |
| EXTERIOR | Balcony |
| FIREPLACE | Yes |
| GARAGE | Yes |
| HEAT | Electric, Heat Pump |
| HOA DUES | 7536|Annually |
| INTERIOR | Bookcases, Ceiling Fan(s), Central Vacuum, Elevator, High Ceilings, Kitchen Island, Pantry, Walk-In Closet(s) |
| LOT | 1307 sq ft |
| LOT DESCRIPTION | Interior Lot |
| LOT DIMENSIONS | 25x70 |
| PARKING | Garage Faces Rear, Attached, Concrete |
| STORIES | 3+ |
| SUBDIVISION | Riverlights Marina Village |
| TAXES | 4901.62 |
| UTILITIES | Natural Gas Available, Natural Gas Connected, Sewer Available, Water Available |
| VIEW | Yes |
| VIEW DESCRIPTION | See Remarks |
| WATER | Public |
| WATERFRONT DESCRIPTION | See Remarks |
TOTAL MONTHLY PAYMENT
| SATELLITE VIEW |
| / | |
Copyright 2026 Hive MLS. All rights reserved. Hive MLS, provides content displayed here (“provided content”) on an “as is” basis and makes no representations or warranties regarding the provided content, including, but not limited to those of non-infringement, timeliness, accuracy, or completeness. Individuals and companies using information presented are responsible for verification and validation of information they utilize and present to their customers and clients. Hive MLS will not be liable for any damage or loss resulting from use of the provided content or the products available through Portals, IDX, VOW, and/or Syndication. Recipients of this information shall not resell, redistribute, reproduce, modify, or otherwise copy any portion thereof without the expressed written consent of Hive MLS.
This IDX solution is (c) Diverse Solutions 2026.
