1144 Avila Lot B Drive, Hampstead, NC 28443 (MLS # 100547691)
|
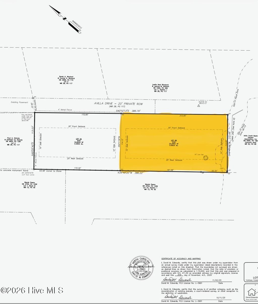
Rare opportunity to own a .562 acre vacant lot with deeded water access on the Intracoastal Waterway. Property includes a private boat lift, offering convenient access for boating, fishing, and waterfront recreation. Ideal setting for a custom coastal home of your dreams.
| DAYS ON MARKET | 53 | LAST UPDATED | 1/8/2026 |
|---|---|---|---|
| TRACT | Avila Subdivision | YEAR BUILT | 0 |
| COUNTY | Pender | STATUS | Active |
| PROPERTY TYPE(S) | Lot/Land/Acreage |
| Elementary School | Topsail |
|---|---|
| Jr. High School | Topsail |
| High School | Topsail |
| ADDITIONAL DETAILS | |
| EXTERIOR | Dock |
|---|---|
| LOT | 0.52 acre(s) |
| LOT DESCRIPTION | Subdivided |
| SEWER | Septic Tank |
| SUBDIVISION | Avila Subdivision |
| TAXES | 1027.17 |
| UTILITIES | Natural Gas Available, Electricity Available |
| WATER | Well |
| WATERFRONT | Yes |
| WATERFRONT DESCRIPTION | Waterfront Access |
TOTAL MONTHLY PAYMENT
| SATELLITE VIEW |
| / | |
Copyright 2026 Hive MLS. All rights reserved. Hive MLS, provides content displayed here (“provided content”) on an “as is” basis and makes no representations or warranties regarding the provided content, including, but not limited to those of non-infringement, timeliness, accuracy, or completeness. Individuals and companies using information presented are responsible for verification and validation of information they utilize and present to their customers and clients. Hive MLS will not be liable for any damage or loss resulting from use of the provided content or the products available through Portals, IDX, VOW, and/or Syndication. Recipients of this information shall not resell, redistribute, reproduce, modify, or otherwise copy any portion thereof without the expressed written consent of Hive MLS.
This IDX solution is (c) Diverse Solutions 2026.
