119 Sound View Drive N, Hampstead, NC 28443 (MLS # 100545827)
|
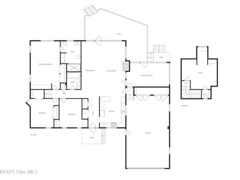
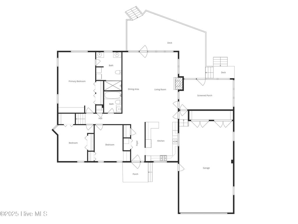
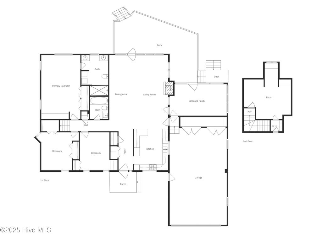
Thoroughly renovated home offering the North Carolina waterfront dream. Just a quick golf cart ride away to the community deep water marina, and steps from your own private dock and boat lift. Belvedere Plantation is one of the very few neighborhoods where you can still find the perfectly quiet, southern-coastal lifestyle. As boater and fishing friendly as it gets - four bedroom two bathrooms sitting on half an acre directly in front of the North Carolina Intracoastal Waterway. Stop on by for a glimpse of what is arguably the ultimate dream come true! A few items to note: Wide-plank 9inch engineered oak hardwood floors throughout the entire first floor. Water heater replaced in 2024 and full HVAC replaced in 2022. The roof has been replaced in 2021 and the irrigation system has been updated. Water facing windows are Pella Windows and all appliances are brand new GE Profile.
| DAYS ON MARKET | 6 | LAST UPDATED | 12/17/2025 |
|---|---|---|---|
| TRACT | Belvedere Plantation | YEAR BUILT | 1995 |
| GARAGE SPACES | 4.0 | COUNTY | Pender |
| STATUS | Active | PROPERTY TYPE(S) | Single Family |
| Elementary School | Topsail |
|---|---|
| Jr. High School | Topsail |
| High School | Topsail |
| ADDITIONAL DETAILS | |
| AIR | Central Air |
|---|---|
| AIR CONDITIONING | Yes |
| APPLIANCES | Electric Water Heater |
| BASEMENT | Crawl Space |
| CONSTRUCTION | Stucco |
| EXTERIOR | Boat Slip, Dock |
| GARAGE | Yes |
| HEAT | Electric, Forced Air |
| INTERIOR | Ceiling Fan(s), Master Downstairs |
| LOT | 0.52 acre(s) |
| LOT DIMENSIONS | 100 x 231 x 37 x 38 x 244 |
| PARKING | Workshop in Garage, Garage Door Opener, Off Street |
| SEWER | Septic Tank |
| STORIES | 2 |
| STYLE | Patio |
| SUBDIVISION | Belvedere Plantation |
| TAXES | 6190.79 |
| UTILITIES | Water Connected |
| VIEW | Yes |
| VIEW DESCRIPTION | Sound, Water |
| WATER | Well, Public |
| WATERFRONT | Yes |
| WATERFRONT DESCRIPTION | Waterfront Access |
TOTAL MONTHLY PAYMENT
| SATELLITE VIEW |
| / | |
Copyright 2025 Hive MLS. All rights reserved. Hive MLS, provides content displayed here (“provided content”) on an “as is” basis and makes no representations or warranties regarding the provided content, including, but not limited to those of non-infringement, timeliness, accuracy, or completeness. Individuals and companies using information presented are responsible for verification and validation of information they utilize and present to their customers and clients. Hive MLS will not be liable for any damage or loss resulting from use of the provided content or the products available through Portals, IDX, VOW, and/or Syndication. Recipients of this information shall not resell, redistribute, reproduce, modify, or otherwise copy any portion thereof without the expressed written consent of Hive MLS.
This IDX solution is (c) Diverse Solutions 2025.
