1908 Rooks Road, Atkinson, NC 28421 (MLS # 100544322)
|
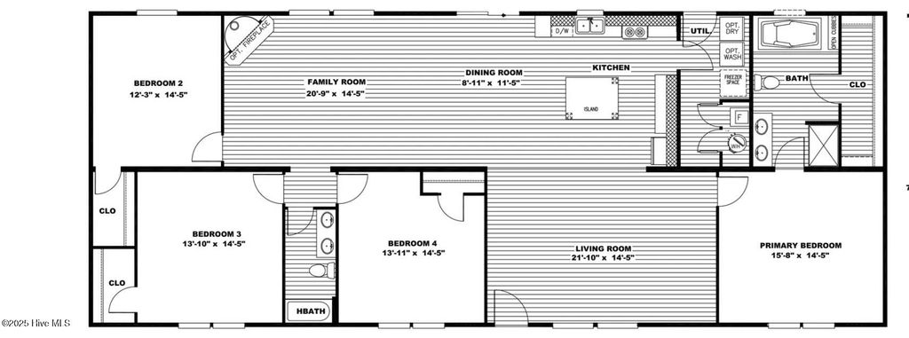
Experience spacious country living in this impressive 3-bedroom, den, 2-bath Clayton Home. Set on a quiet road, surrounded by rural scenery, this home blends comfort, practicality, and modern finishes in a way that's perfect for anyone craving space to spread out. Step inside to an inviting open floor plan, known for its generous living area and signature Clayton upgrades with 3-inch wood-look vinyl flooring, recessed lighting, dark gray cabinets, and window blinds. The bright and spacious kitchen features Samsung stainless steel appliances, a large kitchen island, and plenty of counter space which is ideal for gathering, cooking, and everyday ease. The large primary suite offers a private retreat with a double vanity, soaking tub, separate shower, and a substantial walk-in closet. The additional bedrooms provide versatile living options, while the additional den is perfect for a home office, or flex space. Bedrooms are carpeted for comfort, while the main living spaces feature durable, easy-to-clean vinyl flooring. Outside, the property offers a serene country setting with a partial privacy fence. The gravel driveway provides ample parking for multiple vehicles, trailers, or guests. If you've been searching for a spacious, modern manufactured home with room to live, grow, and enjoy the quiet of the countryside, 1908 Rooks Road delivers exceptional value and comfort. Schedule your showing today to experience this popular Clayton model for yourself!
| DAYS ON MARKET | 10 | LAST UPDATED | 12/6/2025 |
|---|---|---|---|
| TRACT | Not In Subdivision | YEAR BUILT | 2025 |
| COUNTY | Pender | STATUS | Active |
| PROPERTY TYPE(S) | Mobile/Manufactured |
| Elementary School | Malpass Corner |
|---|---|
| Jr. High School | West Pender |
| High School | Pender |
| ADDITIONAL DETAILS | |
| AIR | Central Air |
|---|---|
| AIR CONDITIONING | Yes |
| APPLIANCES | Dishwasher, Electric Oven, Electric Water Heater, Refrigerator |
| BASEMENT | None |
| CONSTRUCTION | Brick, Vinyl Siding |
| HEAT | Electric, Heat Pump |
| INTERIOR | Kitchen Island, Walk-In Closet(s) |
| LOT | 1.05 acre(s) |
| LOT DIMENSIONS | 150x111.02x491.56x56.2x32.74x266.39x227. |
| PARKING | Gravel |
| POOL DESCRIPTION | None |
| SEWER | Septic Tank |
| STORIES | 1 |
| SUBDIVISION | Not In Subdivision |
| UTILITIES | None |
| VIEW | Yes |
| VIEW DESCRIPTION | See Remarks |
| WATER | Well |
| WATERFRONT DESCRIPTION | See Remarks |
TOTAL MONTHLY PAYMENT
| SATELLITE VIEW |
| / | |
Copyright 2025 Hive MLS. All rights reserved. Hive MLS, provides content displayed here (“provided content”) on an “as is” basis and makes no representations or warranties regarding the provided content, including, but not limited to those of non-infringement, timeliness, accuracy, or completeness. Individuals and companies using information presented are responsible for verification and validation of information they utilize and present to their customers and clients. Hive MLS will not be liable for any damage or loss resulting from use of the provided content or the products available through Portals, IDX, VOW, and/or Syndication. Recipients of this information shall not resell, redistribute, reproduce, modify, or otherwise copy any portion thereof without the expressed written consent of Hive MLS.
This IDX solution is (c) Diverse Solutions 2025.
