209 Creek View Circle, Sneads Ferry, NC 28460 (MLS # 100539915)
|
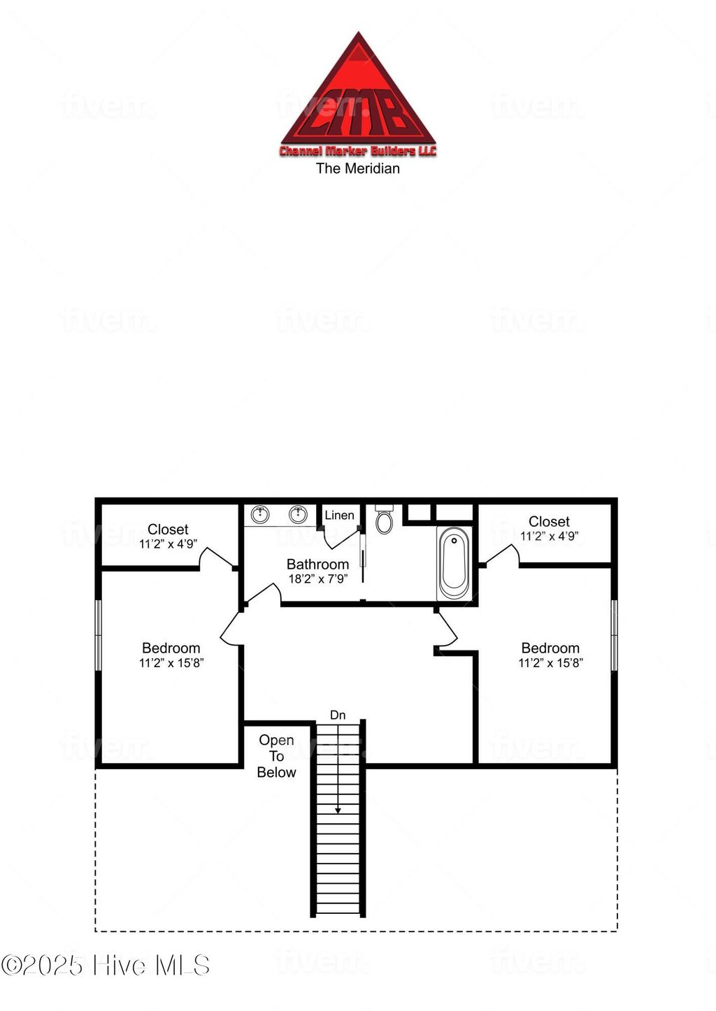
Welcome to the Meridian Floorplan by Channel Marker Builders! This is your opportunity to create a true coastal sanctuary on a stunning 2.28-acre homesite with 239 feet of pristine waterfront with breathtaking panoramic water views, coastal breezes, and the peaceful sounds of nature, including eagles soaring across the marsh. The Meridian Floorplan is a thoughtfully designed coastal cottage-style home that blends Southern charm with elegance. Featuring 3 bedrooms, 2.5 baths, an office at the front of the home, and an upstairs loft, this plan offers both beauty and functionality. The open-concept main level includes 10-foot ceilings, a cathedral ceiling in the living room, and a cozy gas-log fireplace. The gourmet kitchen showcases a large island, abundant cabinetry, and a dining nook. The owner's suite is located on the main level with private laundry access, spacious ensuite, and walk-in closet. Upstairs, you'll find two additional bedrooms with a Jack and Jill bath and a versatile loft/flex space. Enjoy indoor-outdoor living with an oversized slider opening to a screened-in back patio, where you can relax and take in the serene waterfront views. With all the groundwork done and a premier builder ready to begin, this property is truly turn-key for your coastal dream home. Don't miss this rare opportunity to own and build your own piece of paradise in Sneads Ferry.
| DAYS ON MARKET | 31 | LAST UPDATED | 11/6/2025 |
|---|---|---|---|
| TRACT | Creeks Edge | YEAR BUILT | 2026 |
| GARAGE SPACES | 2.0 | COUNTY | Onslow |
| STATUS | Active | PROPERTY TYPE(S) | Single Family |
| Elementary School | Coastal |
|---|---|
| Jr. High School | Dixon |
| High School | Dixon |
| ADDITIONAL DETAILS | |
| BASEMENT | None |
|---|---|
| CONSTRUCTION | Fiber Cement |
| GARAGE | Yes |
| HEAT | Electric, Heat Pump |
| HOA DUES | 266|Annually |
| INTERIOR | High Ceilings, Master Downstairs, Pantry, Vaulted Ceiling(s), Walk-In Closet(s) |
| LOT | 2.28 acre(s) |
| LOT DESCRIPTION | Wetlands |
| LOT DIMENSIONS | 88x601x239x689 |
| PARKING | Attached |
| SEWER | Septic Tank |
| STORIES | 2 |
| SUBDIVISION | Creeks Edge |
| UTILITIES | Water Available |
| VIEW | Yes |
| VIEW DESCRIPTION | Water |
| WATER | Public |
| WATERFRONT DESCRIPTION | Waterfront |
TOTAL MONTHLY PAYMENT
| SATELLITE VIEW |
| / | |
Copyright 2025 Hive MLS. All rights reserved. Hive MLS, provides content displayed here (“provided content”) on an “as is” basis and makes no representations or warranties regarding the provided content, including, but not limited to those of non-infringement, timeliness, accuracy, or completeness. Individuals and companies using information presented are responsible for verification and validation of information they utilize and present to their customers and clients. Hive MLS will not be liable for any damage or loss resulting from use of the provided content or the products available through Portals, IDX, VOW, and/or Syndication. Recipients of this information shall not resell, redistribute, reproduce, modify, or otherwise copy any portion thereof without the expressed written consent of Hive MLS.
This IDX solution is (c) Diverse Solutions 2025.
